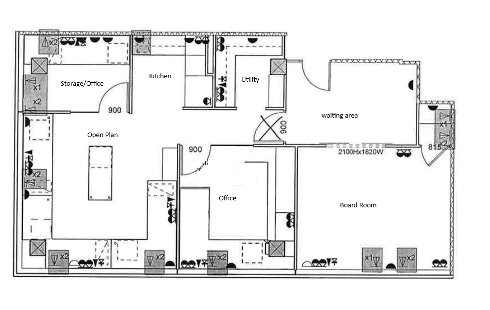
BNG Property presents 91sqm fitted out space with great natural light and river views. Perfect for start-ups, small business or professional services.
- River view boardroom and office to close those deals and impress clients
- Open desk area with ample natural light and river views
- Modern kitchenette
- Waiting area
- Onsite secure staff and visitor parking
- End of Trip Facilities
- Central location in Milton business precinct, easy walk to surrounding eateries including the artisan patisserie – Beurre Pastries and multiple times winner of Brisbane’s most acclaimed Chinese Restaurant China Sea Milton
- Conveniently located less than 5 minutes from Brisbane CBD with easy access to major arterial roads and multiple modes of public transport.
- Tenancy can be provided in its current configuration or stripped back into base build configuration.
- Built in flexibility for the growing company with landlord willing to consider upgrading tenants among the landlord’s commercial portfolio if tenants outgrow their space.
Contact the Owner’s reps Joshua and Rick today for more information.
Joshua Man – 0447 040 543
Rick Shepherd – 0410 079 217



